Laurum Ingenieure Logo Kontakt
Ihr Anpsprechpartner M. Sc. Benedikt Hackl (TUM)
Ihr Ansprechpartner
M. Sc. Benedikt Hackl (TUM)
Bauingenieur
M +49 (0)177 808 86 84
b.hackl@laurum-ingenieure.de
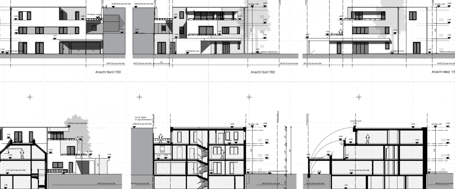
Mehrfamilienwohnhaus Obermenzing

KFW 55 Gebäude Obermenzing

Bei diesem Projekt durften wir die Statik Bauphysik und Brandschutz bearbeiten,  Es handelt sich um ein Architektenhaus mit 3 Wohneinheiten und Tiefgarage.

  • Kerntäigkeiten
    Statik, Bauphysik und Brandschutz
  • Gebäudeart
    Mehrfamilienwohnhaus
  • Bauherr
    Privat
  • Projektzeitraum
    04/2021 - 06/2022
  Zur Projektübersicht